
- Modelis: VK-SPAF
- Matavimo būdas: sraigto matavimas ir padavimas
- Svorio diapazonas: 50-500g
- Tikslumas: 2 %
- Greitis: 10-30 buteliukas/min
- Įtampa: 220V (pritaikoma)
- Bunkeris: 25L
- Užpildymo antgaliai: 10 mm (kiti 15 mm, 18 mm, 20 mm, 25 mm)
- Galia: 1,2 kW
- GN svoris: 230/200kgs
- Dydis: 800×850×2000mm
Ši miltelių pildymo mašina yra visiškai pagaminta iš nerūdijančio plieno, užpildymo sistemą varo servovariklis, o maišymo varikliui naudojamas Taivano pagamintas priežiūros nereikalaujantis reduktorius, gaminio spintelė nurodyta kaip visiškai uždaryta, sklendės oro slėgio valdymas, pagamintas iš nerūdijančio plieno plieno ir stiklo. Dulkių nusiurbimo įtaisas montuojamas užpildymo vamzdžio angoje, skirtas daugkartinio naudojimo darbo stalo aukštis reguliuojamas, su atliekų produktų stalčiumi po stalu.
Pagrindinės pusiau automatinių kūdikių talko miltelių pildymo mašinų savybės


Pagaminta iš nerūdijančio plieno: visiškai prisitaikyti prie GMP ar kito maisto sanitarijos sertifikavimo reikalavimų, tinkamų korozinių cheminių medžiagų pakavimui;
Užpildymas geresnis stabilumas ir didesnis svėrimo tikslumas;
Užpildymo sistemą varo žingsninis variklis, didelis tikslumas, didelis sukimo momentas, ilgas veikimo laikas ir reguliuojami sūkiai;
Taivane pagamintas priežiūros nereikalaujantis reduktorius naudojamas varikliui maišyti: mažas triukšmo lygis, ilgas eksploatavimo laikas, nereikalauja priežiūros visą gyvenimą;
Sukurtas bet kuriuo metu keičiamam darbo sąlygoms;
Max.10 receptų galima išsaugoti vėlesniam naudojimui;
Kontaktinės medžiagos plienas yra maisto tipo nerūdijantis 304;
Gaminio spintelė yra visiškai uždaryta, reguliuojamas drėgno oro slėgis ir pagaminta iš stiklo su nerūdijančiu plienu, gaminio judėjimas spintelėje iš pirmo žvilgsnio aiškus, milteliai nenuteka, užpildymo vamzdžio angoje sumontuotas dulkių nusiurbimo įtaisas veda į švarią augalų aplinką;
Keičiant priedus, mašina tinka įvairiems produktams, nesvarbu, ar jie yra labai smulkūs ar dideli grūdai.
Sraigto matavimo padavimo miltelių pildymo mašinos specifikacija
| Modelis | VK-SPAF |
| Matavimo būdas | Sraigto matavimas ir maitinimas |
| Svorio diapazonas | 50-500g |
| Tikslumas | 2% |
| Greitis | 10-30 buteliukas/min |
| Įtampa | 220 V (pritaikoma) |
| Bunkeris | 25L |
| Užpildymo purkštukai | 10 mm (kitas 15 mm, 18 mm, 20 mm, 25 mm) |
| Galia | 1,2 kW |
| GN svoris | 230/200 kg |
| Dydis | 800×850×2000 mm |
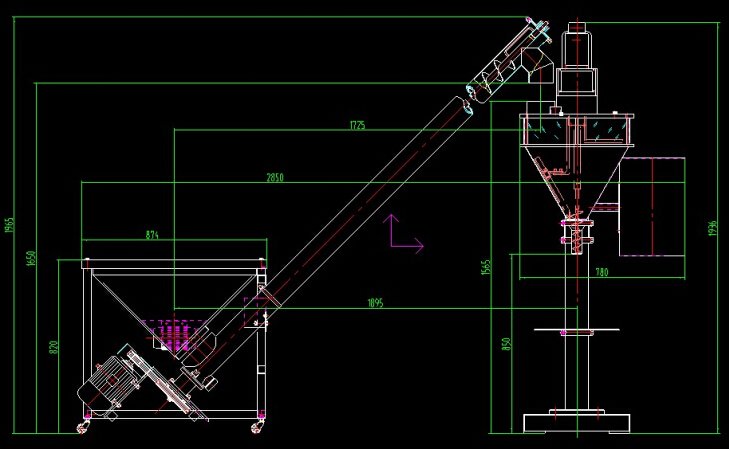
Miltelių pildymo mašinos iliustracija


Detalės


Lifto sraigtinio padavimo medžiagų pakrovimas ir tiektuvas

Įrengimas medžiagų padavimui ir pakrovimui
Dviejų krypčių jungiklis; sukimas pirmyn / atgal, atitinkamai tiekiant žaliavas ir išleidžiant medžiagas iš apatinės išleidimo angos.
Reduktoriaus veleno mova negali būti užblokuota. Po montavimo veleno mova turi būti tampri ir lanksti, kad būtų išvengta nudegimų dėl variklio perkrovos. Montavimo metu flanšo varžtas gali būti tinkamai sureguliuotas.
Sraigto kaiščio galas niekada neturėtų būti pritvirtintas per stipriai, kad besisukantis sraigtas nesiliestų su vamzdžio sienele dėl sulenkto sraigto. Priveržkite veržlę, kad pritvirtintumėte kaištį ir jį pritvirtintumėte. Kiekvieną kartą, kai sraigtas ištraukiamas valyti ir vėl sumontuoti, reikia atsižvelgti į tai.
Lifto tūris ir aukštis gali būti integruoti su pakavimo mašina, naudojant serijinę indukciją. Iš lifto nėra tiekiamų medžiagų be medžiagų talpykloje.
Lifto jungtis veikia su miltelių pildymo mašina, automatiškai tiekia ir sustabdo.
Techninis lifto parametras

| Garso perkėlimas | 1 mln3/ valanda (integruota su pildymo mašina) |
| bunkeris | 100L |
| Pakeliamas aukštis | 2000 mm |
| Variklio galia | 1,5 kW |
| Tiekimo galia | 380V/50-60Hz |
| Aukštis tarp bunkerio ir žemės | 800-900 mm |
| Variklio markė | Juli |
| Bunkerio medžiagos | SS304, storis 1,50 mm |
| Vamzdis pašarų medžiagų perdavimui | SS304, skersmuo: 103 mm, storis: 3,00 mm |
| Auger | SS304, storis 3,00 mm |
| Velenas | SS304, skersmuo 35 mm |
| Svoris | 150 kg |
| Dydis | 1900 * 880 * 2100 mm (pritaikoma) |
Garantija: Visai mašinai taikoma 1 metų garantija. (Garantija netaikoma problemoms, kilusioms dėl nelaimingų atsitikimų, netinkamo naudojimo, netinkamo naudojimo, sandėliavimo pažeidimų, aplaidumo arba įrangos ar jos komponentų modifikavimo. Taip pat lengvai sulūžusi atsarginė dalis neįeina į garantiją)
Montavimas: Mašinai atvykus į jūsų gamyklą, jei jums reikia, mūsų technikas nuvyks į jūsų vietą, kad įdiegtų ir išbandytų mašiną, taip pat apmokytų jūsų darbuotoją valdyti mašiną (traukinio laikas priklauso nuo jūsų darbuotojo). Išlaidos (lėktuvo bilietas, maistas, viešbutis, kelionės mokestis jūsų šalyje) turi būti jūsų sąskaitoje ir jums reikia sumokėti už techniką 150 USD per dieną. Taip pat galite eiti į mūsų gamyklą mokytis.
Po aptarnavimo: Jei mašinoje iškils problema, mūsų technikas kuo greičiau nuvyks į jūsų vietą ir sutvarkys mašiną. Mokestis turi būti jūsų sąskaitoje (kaip nurodyta aukščiau).









